[Get 37+] Rangkaian Wiring Diagram Ats Amf Genset
Get Images Library Photos and Pictures. Https Encrypted Tbn0 Gstatic Com Images Q Tbn And9gctsqq38pahnxmxtlkpkh U62wawj 0vrhyddtalpew Usqp Cau Panel Ats Amf Turorial Kita In 2020 Transfer Switch Generator Transfer Switch Solar Generator Http Ejournal Uika Bogor Ac Id Index Php Juteks Article Download 344 Eng Wiring Diagram Panel Ats Amf Genset Youtube
Ats wiring diagram for standby generator generac ats wiring diagram collection generac automatic transfer switch wiring diagram simple design between solargenerator download wiring diagram. Wiring diagram amf genset.
. Diagram Wiring Diagram Ats Amf Full Version Hd Quality Ats Amf Diagramnow11 Plusmarine It Diagram Wiring Diagram Ats Amf Full Version Hd Quality Ats Amf Diagrampdflune Biotecnologiesicurezza It Ats Amf Panel Desigening Eeenginners
Ats Amf Panel Desigening Eeenginners
Ats Amf Panel Desigening Eeenginners There are 5 breaker used.
. 3 2016 automatic transferred switch ats circuit diagram electrical engineering blog wiring diagram ats amf genset images 20 part of wiring diagram free save your favourite image or wallpapers modul ats amf merk comap sro checz intellilite amf25 wiring control 7 warna kabel pembeda sumber tegangan memudahkan troubleshooting wiring diagram manual book note mccb bisa diganti dengan merk schneider. An amf control panel automatic mains failure control panel is the ideal choice in cases where you have to control a generator that is connected to the mains in a. Panel amf automatic main failure.
A wiring diagram is a simplified conventional photographic depiction of an electric circuit. Wiring diagram ats amf. Atsamf panel of genset.
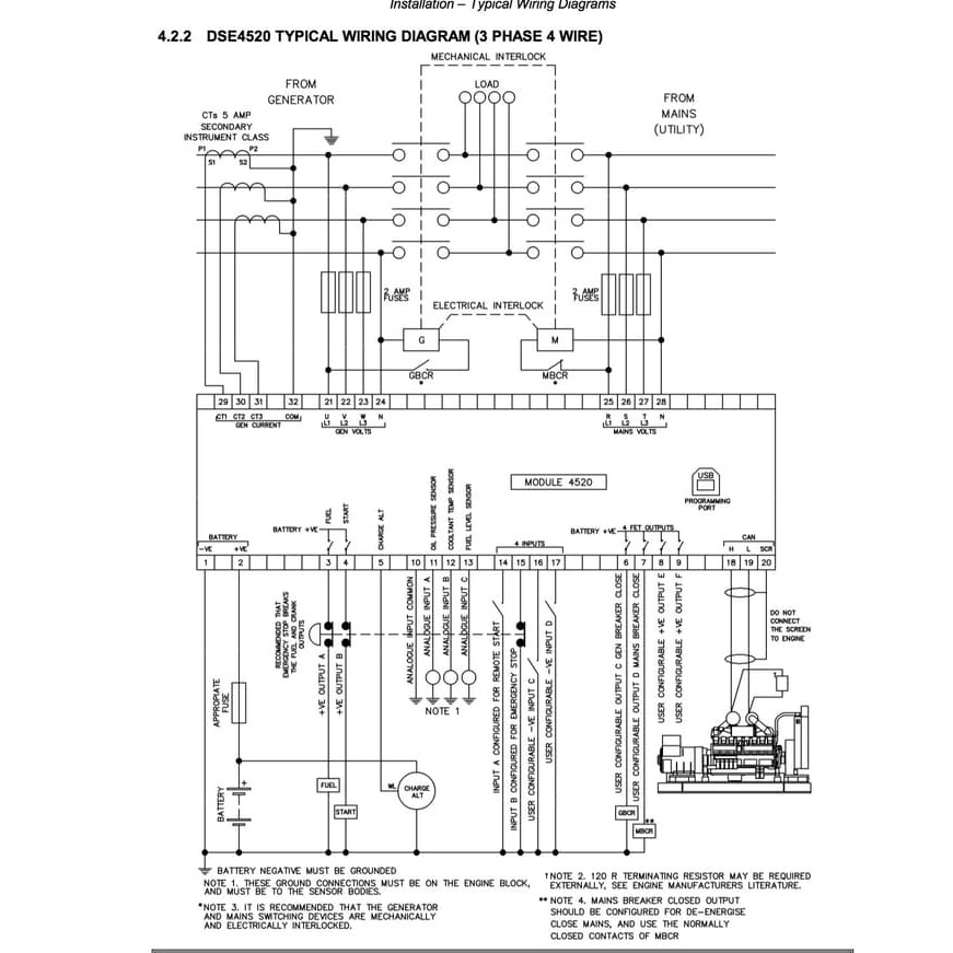
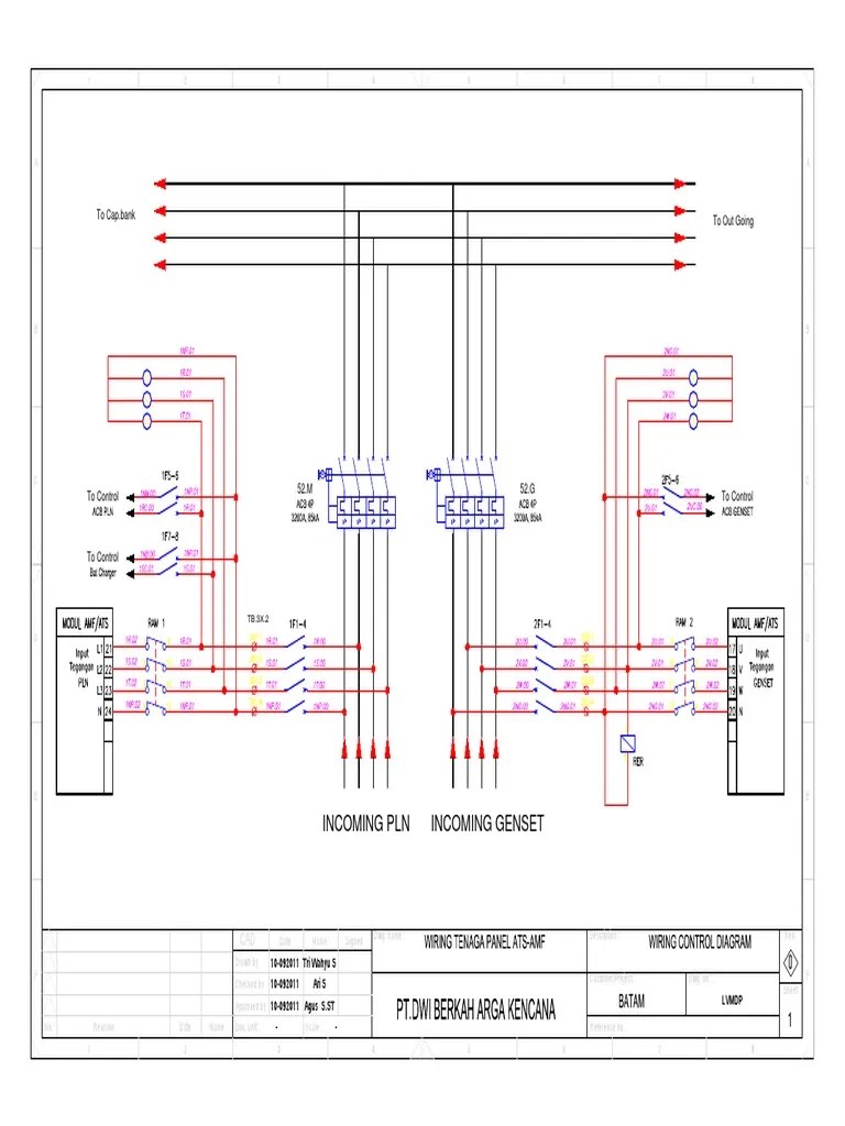
Wiring panel listrik ats automatic transfer switch amf automatic main failuredilengkapi dengan kontroller deep sea 4520 mk ii dan cos motorized socomec aty. Diagram wiring panel ats full rangkaian amf genset otomatis kontrol dan listrik 3 phase jual harga 100 kva kab 150kva diagram wiring panel ats full version hd quality amwiringw legrandbleu it indonesia rangkaian ats amf genset otomatis sariling diagram wiring amf genset full version hd quality surgediagram sogesco it diagram wiring panel kontrol genset full read more. Box panel 600 x 400 x 200 2.
Facebook twitter google pinterest linkedin whatsapp. Dari penjelasan singkat tersebut dapat kita asumsikan fungsi utama atsamf adalah menyalakan genset jika sumber listrik utama pln mati. Comap believes that all.
Add wiring diagram introductions. Ats 10 wiring diagram. Page 1 dkg 307 user manual v 37 01032012 dkg 307 automatic mains failure unit canbus and mpu versions description features the controller is a comprehensive amf unit for true rms measurements single genset standby or dual genset mutual standby ecu connection through j1939 can option operations.
Sedangkan amf automatic main failure berfungsi untuk menyalakan mesin genset jika beban yang di layani kehilangan sumber energy listrik utamapln. Wiring diagram ats amf genset images 20 part of wiring diagram free save your favourite image or wallpapers. Variety of ats wiring diagram for standby generator.
It shows the elements of the circuit as streamlined shapes as well as the power and also signal links between the gadgets daftar harga panel otomatis genset amf ats spesifikasi panel ats amf 20 kva kontaktor 1. This content is password protected. The atsgtsups end system must be correctly grounded for proper operation.
Battery positive terminal 2 phase 1 main 3 phase 2 main. Unsubscribe from edison world. Control wiring diagram of ats wiring diagram.
Dan menghubungkan dayalistrik dari genset terhadap beban. Atsamf panel of genset by eeengineers v o l c november 02 2016. Share to twitter share to facebook share to pinterest.
Diagram Wiring Diagram Ats Sederhana Full Version Hd Quality Ats Sederhana Line83 Hotelristoranteeuropa It
Diagram Wiring Diagram Ats Dan Amf Full Version Hd Quality Dan Amf Iphonespel Critickets It
Diagram Wiring Diagram Panel Ats Amf Full Version Hd Quality Ats Amf Powerpakwiring Ritamorlando It
Download Schema Wiring Diagram Panel Ats Genset Full Hd Version Grafikburda Chefscuisiniersain Fr
Diagram Ats Wiring Diagram For Diesel Generator Full Version Hd Quality Diesel Generator Kitwirings Caracozziexpert It
Diagram Wiring Diagram Ats Amf Full Version Hd Quality Ats Amf Diagramnow11 Plusmarine It
Diagram Wiring Diagram Ats Genset Full Version Hd Quality Ats Genset Mechanicalengineeringwire Artistesdetalents Fr
Diagram Wiring Diagram Sinkron Genset Full Version Hd Quality Sinkron Genset Musclesdiagram Potrosuaemfc Mx
Diagramme Wiring Diagram Ats Amf Genset Full Version Hd Quality Amf Genset Solastructures Puntimpresa It
Diagram Wiring Diagram Ats Amf Full Version Hd Quality Ats Amf Diagramdevenn Pliz Buch De
Diagram Wiring Diagram Ats Amf Full Version Hd Quality Ats Amf Diagrampdflune Biotecnologiesicurezza It
Diagram Wiring Diagram Panel Ats Full Version Hd Quality Panel Ats Hyundaimotor21 Trodat Printy 4917 Fr
Jual Modul Kontrol Ats Amf 1 Phase Setting Sendiri Kota Palu Adrino Tokopedia
Electricveda Com Automatic Transfer Switch Ats Or Automatic Mains Failure Amf Panel
Diagram Wiring Diagram Ats Panel Full Version Hd Quality Ats Panel Core Rewiringl Air China It
Http Ejournal Uika Bogor Ac Id Index Php Juteks Article Download 344 Eng
Diagram Wiring Diagram Ats Amf Genset Full Version Hd Quality Amf Genset Flatbellyfixsystem Livre Fantasy Fr
Indonesia Rangkaian Ats Amf Genset Otomatis Sariling Genset
Diagram Wiring Diagram Ats Amf Full Version Hd Quality Ats Amf Diagramform Scuolapaternopoli It
Diagram Wiring Diagram Ats Sederhana Full Version Hd Quality Ats Sederhana Line83 Hotelristoranteeuropa It
Diagram Wiring Diagram Panel Ats Dan Amf Full Version Hd Quality Dan Amf Solvediagrams Potrosuaemfc Mx
Diagram Wiring Diagram Ats Amf Full Version Hd Quality Ats Amf Diagramnow11 Plusmarine It
Ats Wiring Diagram Gota Wiring Diagram
Deepsea 4520 Modul Ats Amf Autostart Genset Made In Uk Shopee Indonesia
Diagram Wiring Diagram Panel Ats Amf Full Version Hd Quality Ats Amf Turkishdatabase Interassos Uvsq Fr
Diagram Wiring Diagram Panel Ats Genset Full Version Hd Quality Ats Genset Classdiagramxcode Laquilaweb It
Diagram Wiring Diagram Ats Manual Genset Full Version Hd Quality Manual Genset Audioqualitylab Maillotsolympiquedemarseille Fr

Komentar
Posting Komentar